Welcome
Welcome to INTERNATIONAL MEDIA SOLUTION (IMS) a Floor Plan and Photo retouching service provider based in Sri Lanka. The company has enjoyed rapid development and employs some 60 staff who process around 100 -150 floor plans & 100 -200 images a day.
We have team of qualified IT engineers to tackle any kind of challenges. We work around the clock to process any volume of project no matter how small or big it is. We try to deliver our services before the time with the high quality.We feel proud to serve our customers 24*7*365 a days. Our team is divided into 3-shift to operate 24 hours a day, so we can provide best quality graphic editing work for your satisfaction at your convenience.
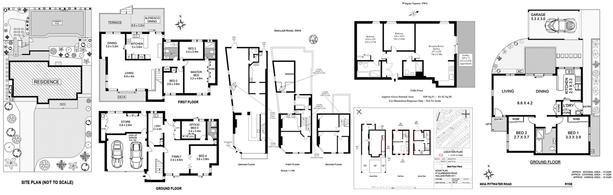
IMS is a company dedicated in providing web enhanced solutions to the global real estate industry without limitations in the form of re-touching & processing digital images, creating 360 Panorama virtual tours, drafting & designing of floor plans, lease plans & site plans for all type of buildings, from small residential types (houses) to the largest commercial and industrial structures (hospitals and factories). All plans are produced to British R.I.C.S standards which are regularly updated.
Why you need floor plans?
We have found an increasing number of clients requesting more detailed information from their estate agents and real estate advisors when buying, renting or leasing property. A set of floor plans will show you exactly how a property is laid out and can give detailed areas of individual floors, rooms or the entire property... The details on a good set of floor plans should also show the location the kitchen, reception rooms, bedrooms, bathrooms, storage and garden layout etc. We aim to have the floor plans back on your desk in less than 24 hours. We can do this as we have professional, efficient, motivated staff. Our drawing offices are in Sri lanka, the technical hub of Asia which means we have a time advantage for clients behind our time zone (e.g. Europe and US).

